Opis nieruchomości
Dom | 5 pokoi | 220 m2 | blisko Szkoły Amerykańskiej (American School of Warsaw) | działka 325 m2 | rok 2010 | osiedle zamknięte | dostępny od zaraz
Mamy ogromną przyjemność zaprezentować Państwu dom o powierzchni 220 m², położony na strzeżonym osiedlu w Bielawie nieopodal Konstancina -Jeziorna.
Lokalizacja:
Nieruchomość znajduje się na terenie zamkniętego osiedla z całodobową ochroną.
W okolicy znajduje się Las Kabacki, Parku Kultury i Rozrywki w Powsinie. Bliskość Szkoły Amerykańskiej stanowi ogromny atut, ułatwiając szybkie i bezproblemowe wynajęcie nieruchomości.
Rozkład pomieszczeń:
Parter: 63,95 m2
- Salon z jadalnią 39,3 m2
- Kuchnia - 9,5 m2
- Toaleta 2,03 m2
- Korytarz 4,95 m2
- Schody 3,4 m2
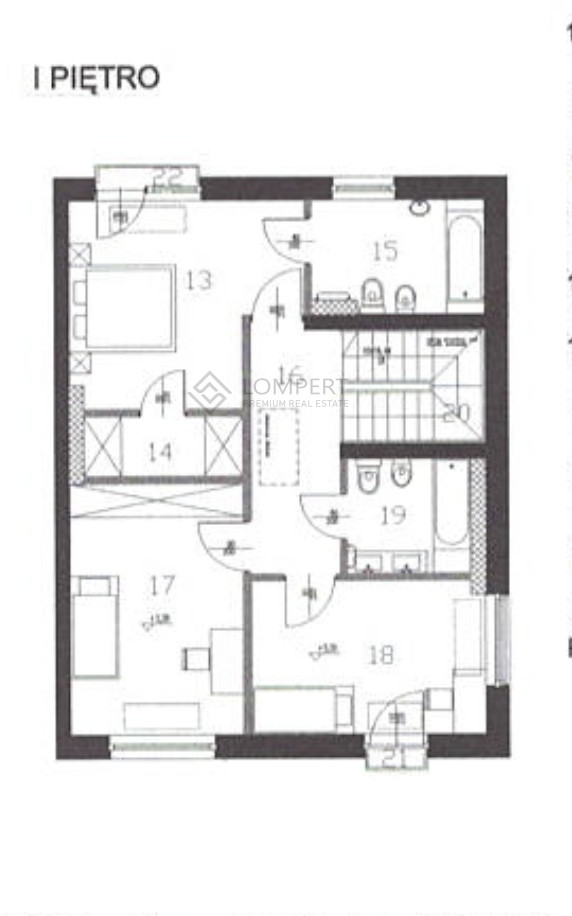
Piętro 1: 67,58 m2
- Sypialnia, łazienką i garderobą (14,72; 3,2 i 6,6 m2)
- Sypialnia 14,98 m2
- Sypialnia 12,38 m2
- Łazienka 4,8 m2
- Hol 7,5 m2
- Schody 3,4 m2
- Balkon 0,19 m2
- Balkon 0,3 m2
Poddasze: 31,5 m2 (wysokość powyżej 1,9 m)
Piwnica: 78,4 m2
- Garaż na 2 samochody 36,6 m2
- Pomieszczenie techniczne/ Kotłownia 3,1 m2
- Pomieszczenie gospodarcze 2,4 m2
- Pralnia 6,9 m2
- Schody 4,2 m2
- Fitness z sauną i łazienką 25,2 m2
Dodatkowe informacje:
Osiedlowa opłata administracyjna wynosi około 1.165 zł miesięcznie.
Ogrzewanie gazowe. Dom wymaga odświeżenia.
Serdecznie zapraszam na prezentację tej wyjątkowej nieruchomości.
Treść niniejszego ogłoszenia nie stanowi oferty handlowej w rozumieniu Kodeksu cywilnego.
LOMPERT Premium Real Estate Sp. z o.o.
Al. Rzeczypospolitej 18 lok. 145
02-972 Warszawa
