Opis nieruchomości
Mamy przyjemność zaprezentować Państwu działkę na sprzedam o powierzchni 1.350 m2 z pozwoleniem na budowę w lokalizacji Wawer.
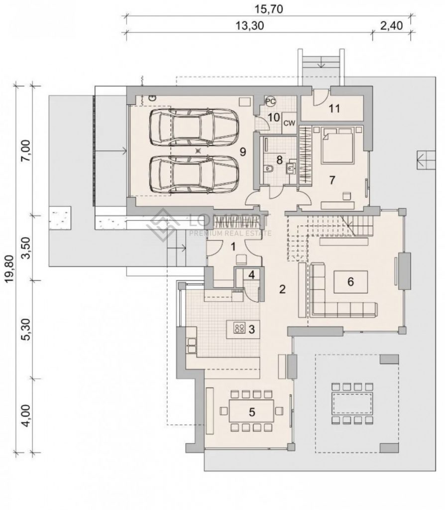
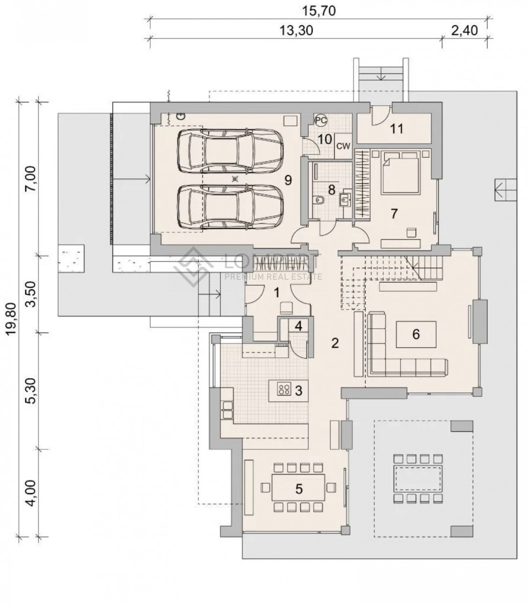
Działka leśna, przygotowana pod budowę domu jednorodzinnego o powierzchni całkowitej 261 m2.
Do działki doprowadzone są wszystkie media:
- woda miejska
- kanalizacja
- prąd
- gaz
Dodatkowe informacje:
Cenę należy powiększyć o podatek VAT.
Dojazd do działki odbywa się drogą, wyłożoną kostką brukową.
Serdecznie polecam tę ofertę i zapraszam na prezentację!
Treść niniejszego ogłoszenia nie stanowi oferty handlowej w rozumieniu Kodeksu Cywilnego.
LOMPERT Premium Real Estate Sp. z o.o.
Al. Rzeczypospolitej 18 lok. 145
02-972 Warszawa
